项目名称 | 吕存仙户住宅 | |
类型 | 批前公示 | |
公示类别 | 建设工程规划许可证 | |
建设单位 | 吕存仙 | |
用地位置 | 沧源县勐董镇白塔社区 | |
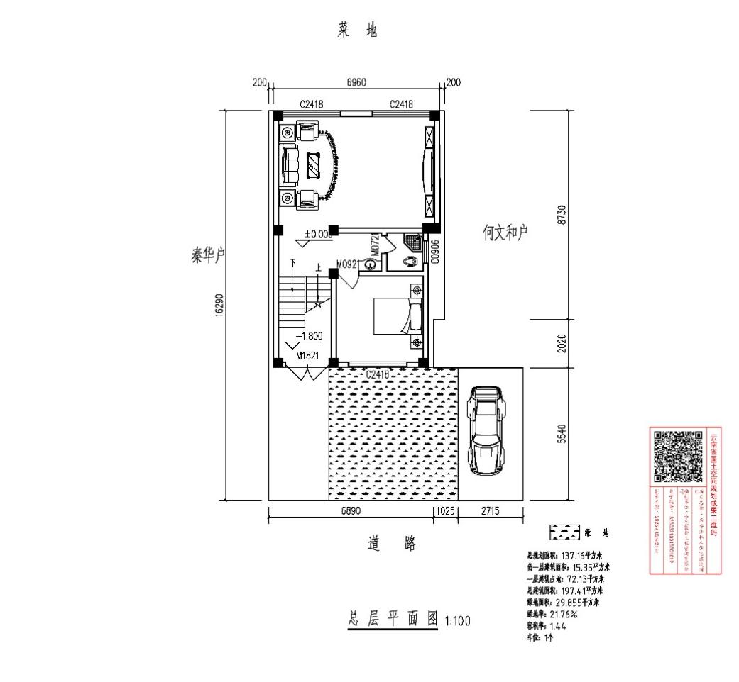
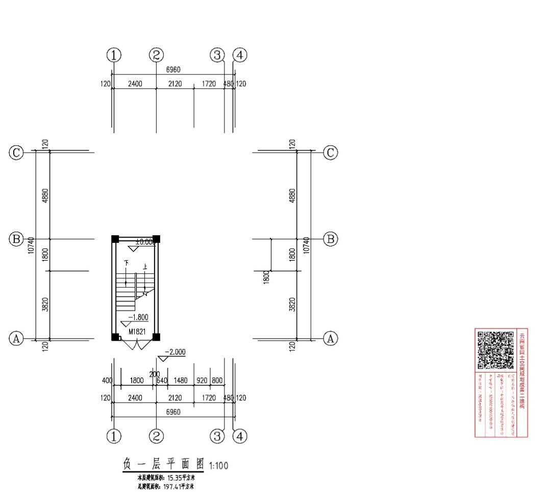
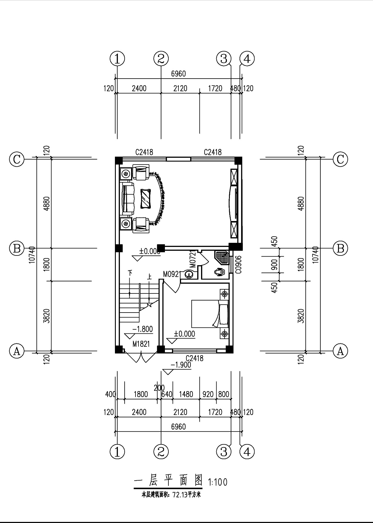
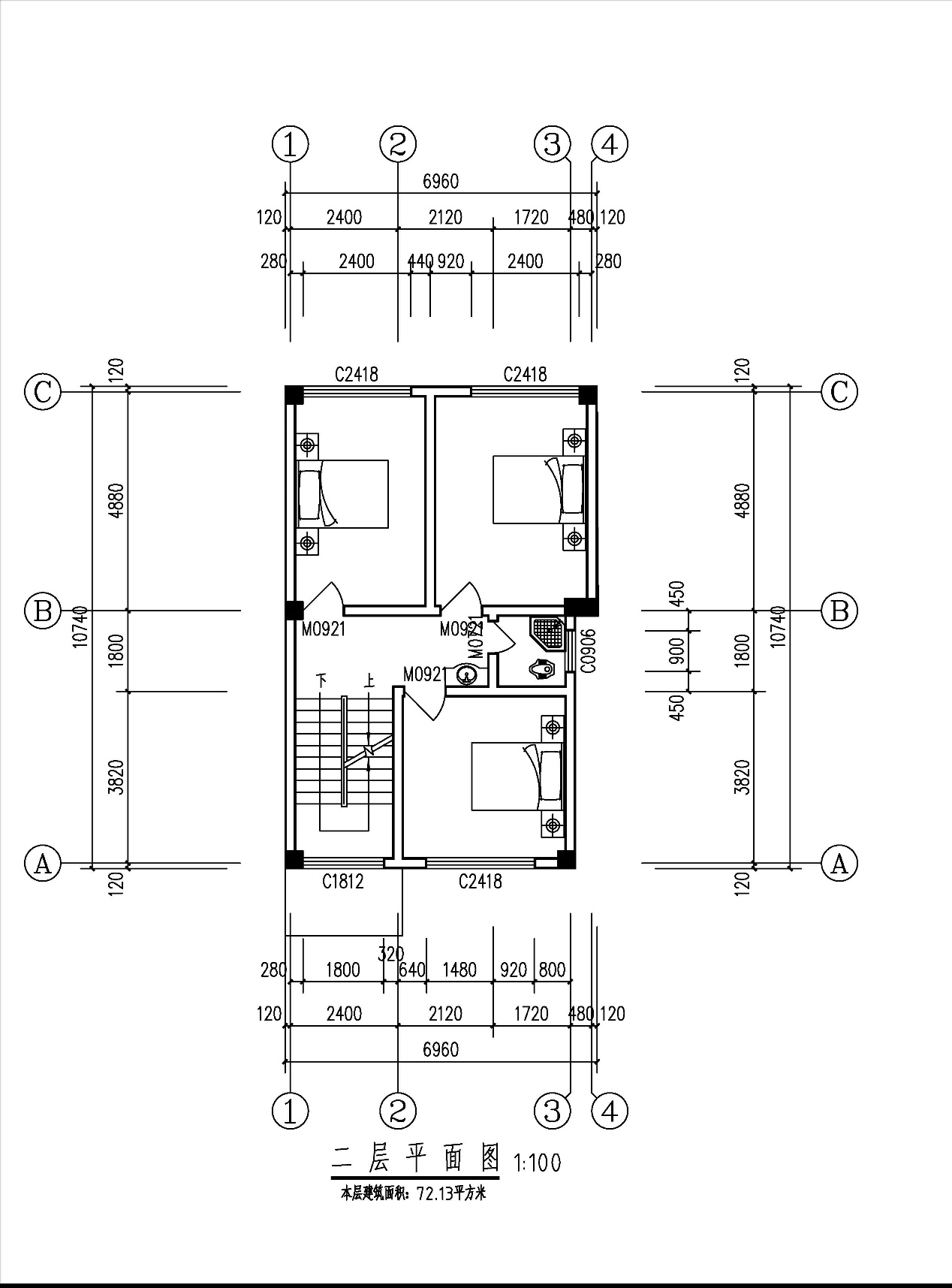
主要经济技术指标 | 用地面积:137平方米;建筑面积:197.41平方米; 容积率:1.44;建筑占地面积:72.13平方米;建筑密度:%;绿地面积29.855平方米;绿地率21.76%。 | |
公示期限 | 7个工作日(2025年7月15日 至2025年 7月23 日) | |
联系电话 | ||
联系邮箱 | ||
说明 | 1.书面反馈(申请)意见发表时间或邮戳日不应超过公示期的最后一天24:00前,逾期视为无效意见。2.书面意见应注明真实联系人姓名、联系方式。3.信件寄往沧源县(区)广场路49号路沧源县(区)自然资源局(请注明“规划公示”字样)。 | |
公示网址 | ||
附件 | 设计方案公示稿(附项目区位图、总平面图、鸟瞰图、绿化景观等其他重要效果图等,涉及方案调整的,需增加方案对比图以及变更内容) | |
建筑平面图:
| ||




