项目名称 | 沧源县圣丰苑煜恒A28号楼项目 |
类型 | 批前公示 |
公示类别 | 建设工程规划核实意见 |
建设单位 | 沧源煜恒置业发展有限公司 |
用地位置 | 沧源县勐董镇一号路交市政四号路处 |
用地性质 | 城镇住宅 |
建设工程规划许可证 | 建字第沧源县202100105 号 |
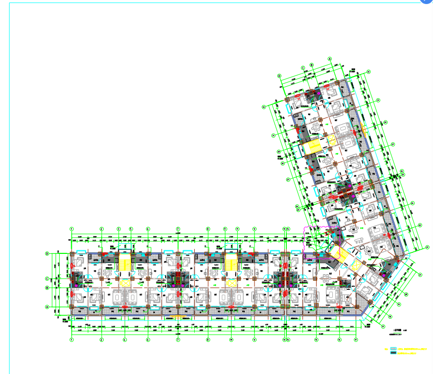
核实情况 | 核实证载土地总用地面积:3582.10平方米;建筑面积9451.36平方米,容积率:2.63;建筑占地面积:1461.37平方米,建筑密度:40.72%;绿地面积 777.39 平方米,绿地率:21.51%,建筑层数为 7 层,建筑高度 23.7 米,停车位 52 个。 |
公示期限 | 7个工作日(2025年9月 17日 至2025年9月25日) |
联系电话 | 0883-7126375 |
联系邮箱 | cyxgtj@163.com |
说 明 | 1.书面反馈(申请)意见发表时间或邮戳日不应超过公示期的最后一天24:00前,逾期视为无效意见。2.书面意见应注明真实联系人姓名、联系方式。3.信件寄往沧源县勐董镇广场路49号县自然资源局(请注明“公示通告”字样)。 |
公示网址 | |
附件 | 沧源县圣丰苑煜恒A28号楼建设项目建设工程规划核实意见总平面图 |
(图片1)
(图片2) | |

(图片3)

(图片4)

(图片5)

(图片6)

