项目名称 | 沧源自治县2023年保障性租赁住房建设项目建设工程规划核实意见(勐来乡中学片区) |
类型 | 批前公示 |
公示类别 | 建设工程规划核实意见 |
建设单位 | 沧源县晟乾建设投资有限责任公司 |
建设工程规划许可证 | 建字第沧源县202307006 |
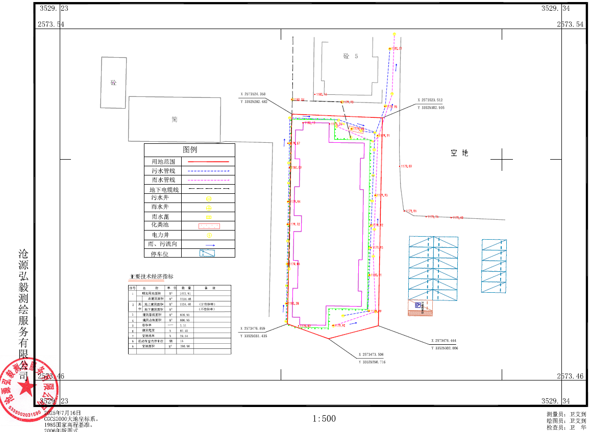
用地位置 | 勐来乡中学 |
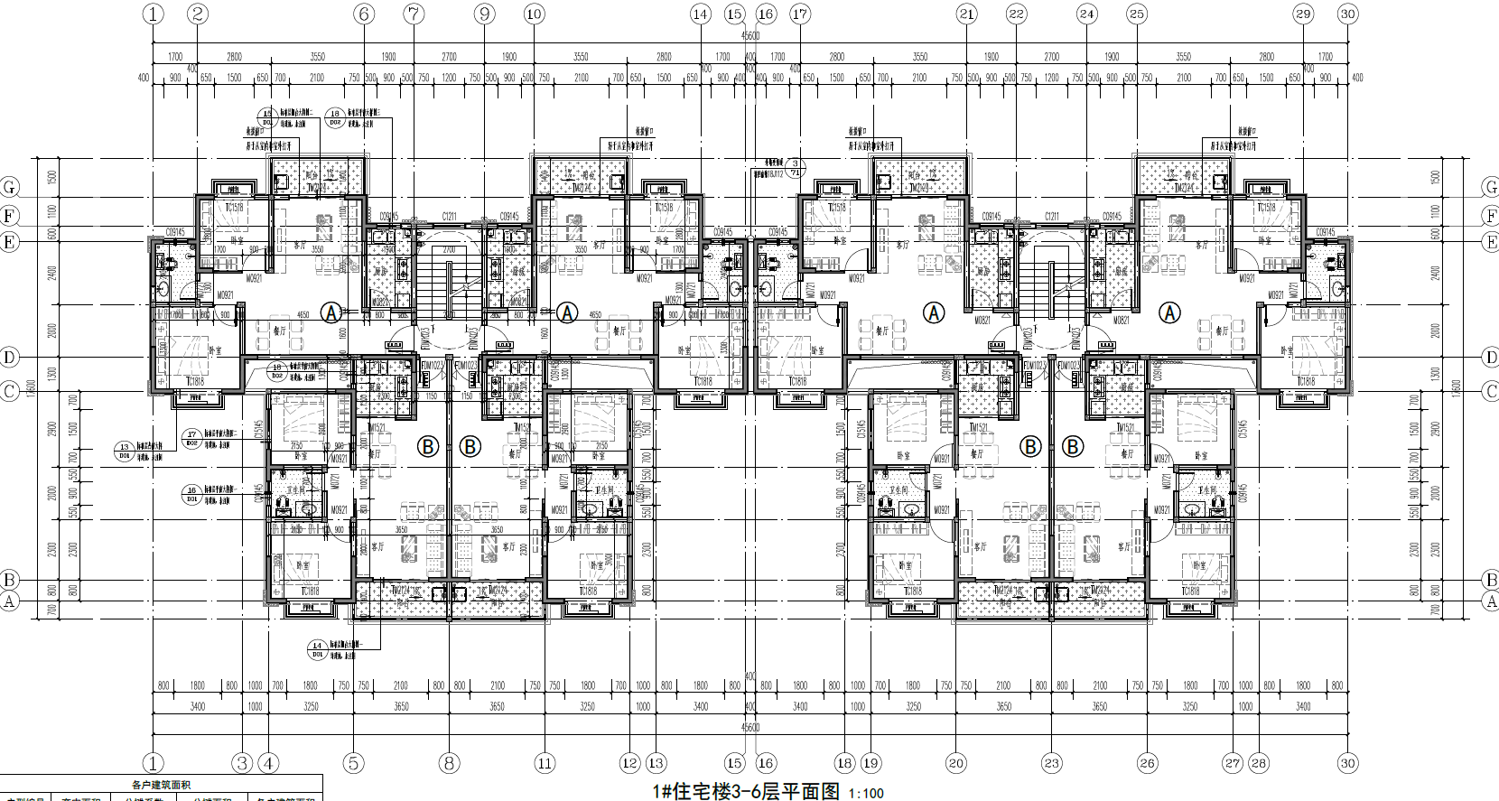
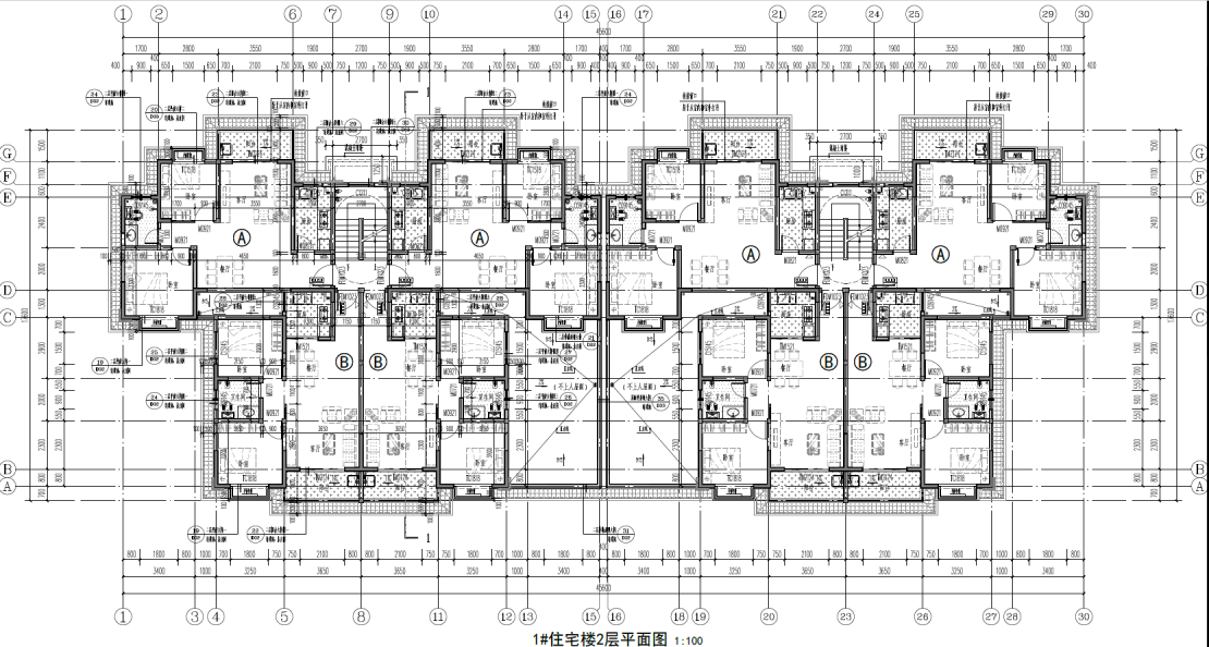
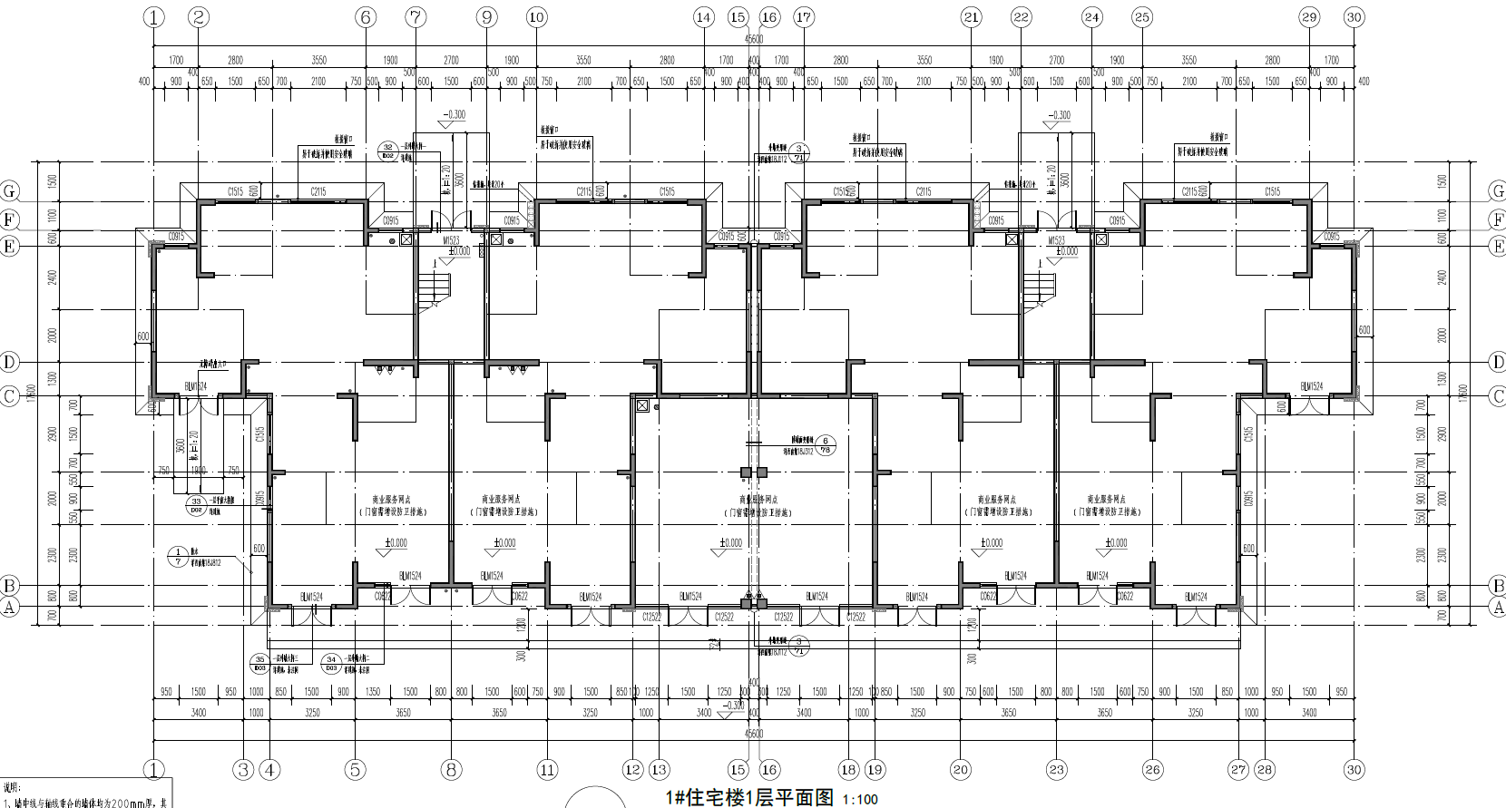
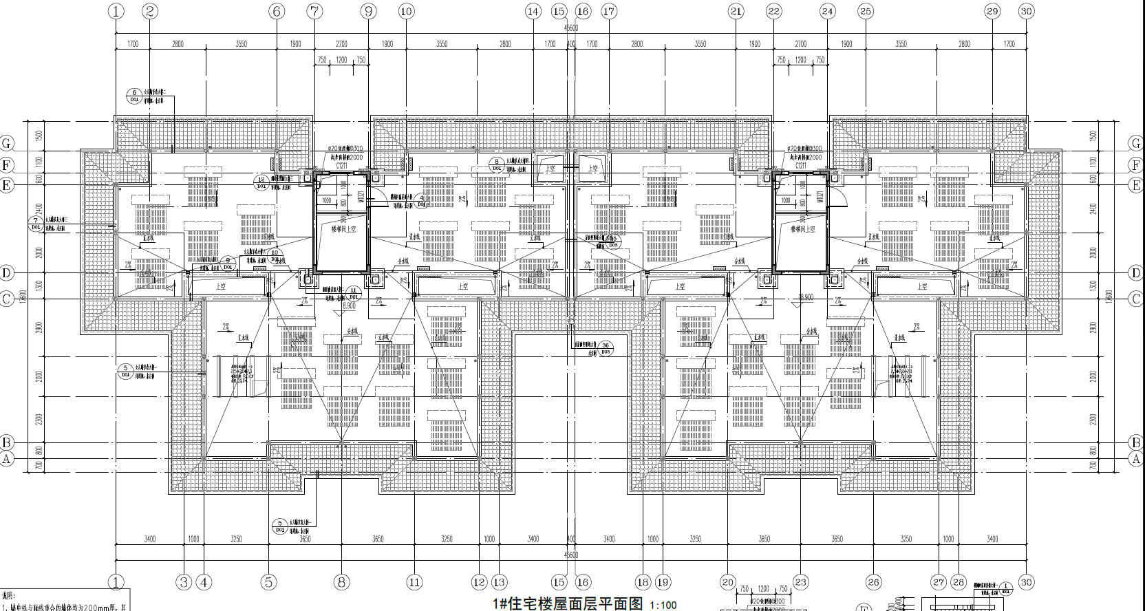
核实意见 | 该项目总用地面积:1003.91平方米,总建筑面积3324.46平方米(超出原批准面积31.41平方米),容积率:3.31(比原批准增加0.03);建筑占地面积606.95平方米,建筑密度60.45%(超原批准1.13%);绿地面积0平方米(原批准261.03平方米)、绿地率0%(原批准26%);建筑高度18.95米,设停车位18个(含5个充电桩车位),均在红线外。 |
公示期限 | 7个工作日(2025年9月28日 至2025年10月13日) |
联系电话 | 0883-7126375 |
联系邮箱 | cyxgtjghg@163.com |
说明 | 1.书面反馈(申请)意见发表时间或邮戳日不应超过公示期的最后一天24:00前,逾期视为无效意见。2.书面意见应注明真实联系人姓名、联系方式。3.信件寄往沧源县勐董镇广场路49号县自然资源局(请注明“公示通告”字样)。 |
公示网址 | |
附件 | 沧源自治县2023年保障性租赁住房建设项目建设工程规划核实意见(勐来乡中学片区)总平面图 设
|




