项目名称 | 沧源县粮食物资储备物流产业园建设项目 |
类型 | 批前公示 |
公示类别 | 建设工程规划许可证 |
建设单位 | 沧源佤族自治县粮油经营有限责任公司 |
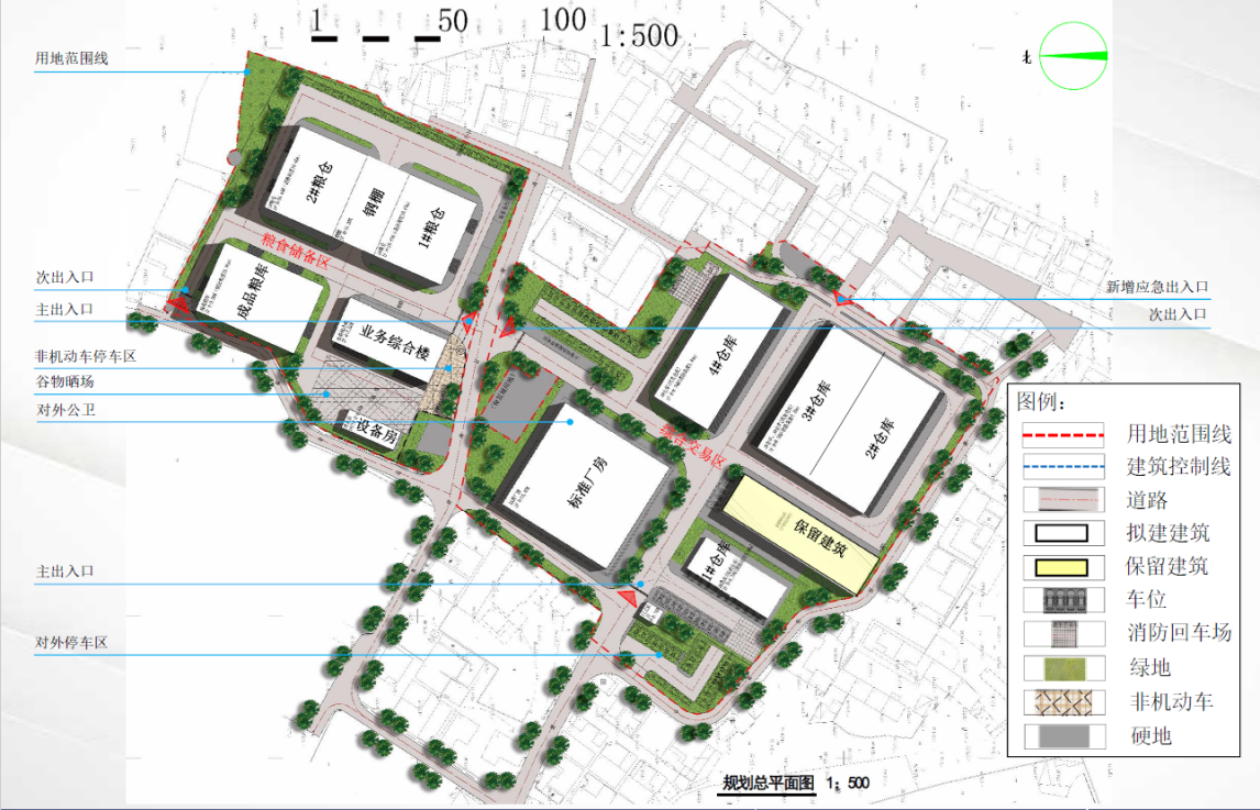
用地位置 | 沧源县粮油购销总公司用地范围内 |
主要经济技术指标 | 总用地面积29706.50平方米;总建筑面积15234.11平方米;容积率0.734;建筑占地面积10395.65平方米;地下建筑面积:390平方米;地上建筑面积:14874.11平方米;建筑密度34.99%、绿地率17.58%(均为草地)、建筑高度12.75米,机动车停车位90个、非机动车停车位153个(含充电车位14个) |
公示期限 | 7个工作日(2025年9月30至2025年10月15日) |
联系电话 | 0883-7126375 |
联系邮箱 | cyxgtjghg@163.com |
说明 | 1.书面反馈(申请)意见发表时间或邮戳日不应超过公示期的最后一天24:00前,逾期视为无效意见。2.书面意见应注明真实联系人姓名、联系方式。3.信件寄往沧源县勐董镇广场路49号县自然资源局(请注明“公示通告”字样)。 |
公示网址 | |
附件 | 沧源县粮食物资储备物流产业园建设项目建设工程公示稿
|



