项目名称 | 赵健材住宅 | |
类型 | 批前公示 | |
公示类别 | 建设工程规划许可证 | |
建设单位 | 赵健材 | |
用地位置 | 沧源县勐董镇直属库生活区 | |
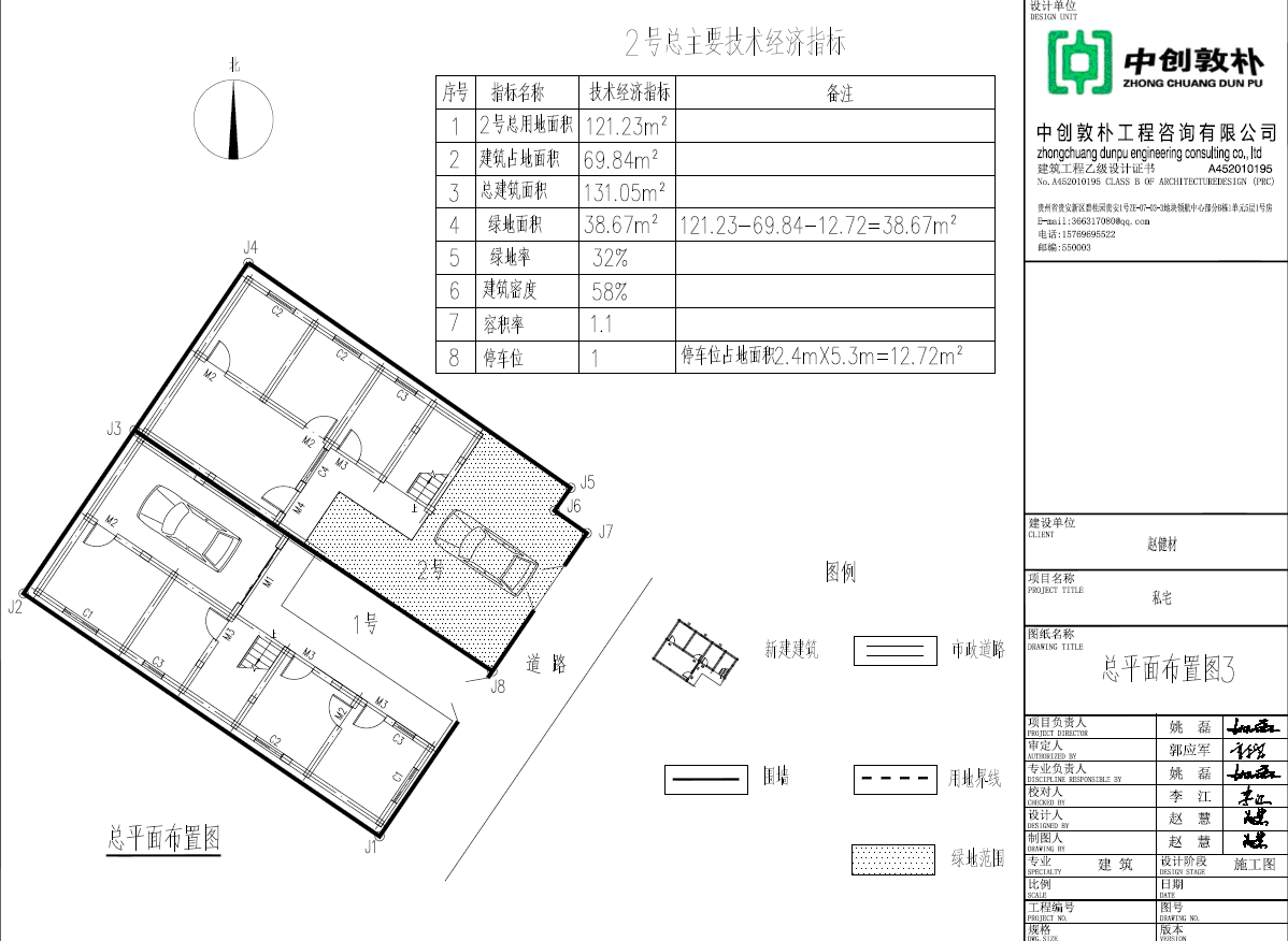
主要经济技术指标 | 用地面积:243.8平方米;总建筑面积:291.41平方米,建筑占地面积:165.8平方米;容积率:1.2;建筑密度: 68%;绿地面积65.28平方米,绿地率27%。停车位2个。 | |
公示期限 | 7个工作日(2025年9月30日 至2025年 9月14 日) | |
联系电话 | 0883-7126375 | |
联系邮箱 | cyxgtjghg@163.com | |
说明 | 1.书面反馈(申请)意见发表时间或邮戳日不应超过公示期的最后一天24:00前,逾期视为无效意见。2.书面意见应注明真实联系人姓名、联系方式。3.信件寄往沧源县勐董镇广场路49号县自然资源局(请注明“公示通告”字样)。 | |
公示网址 | ||
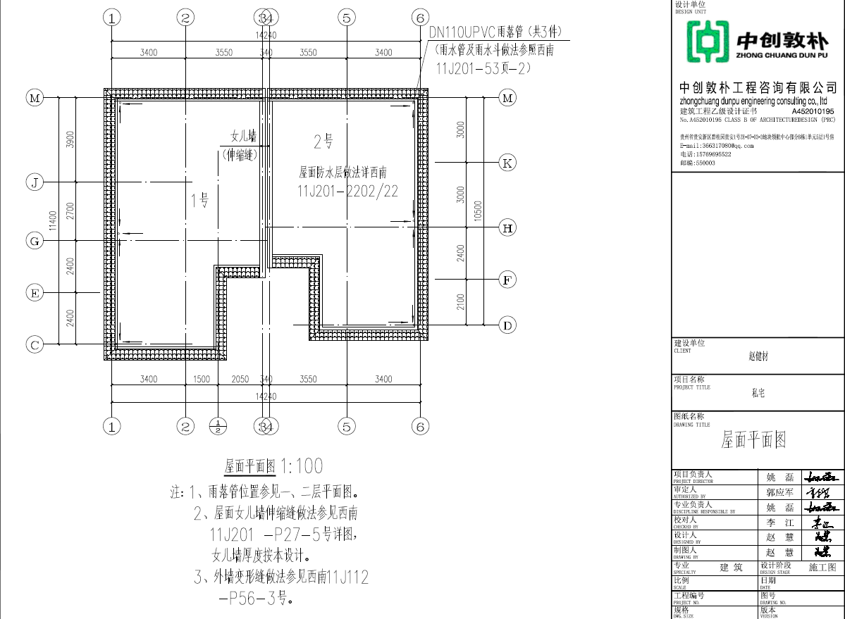
附件 | 沧源县勐董镇直属库赵健材住宅建设工程项目设计方案批前公示平面图 | |
建筑平面图:
| ||





