项目名称 | 朱招茹自建房 |
类型 | 批前公示 |
公示类别 | 建设工程规划许可证 |
建设单位 | 朱招茹 |
用地位置 | 沧源县糯良乡 |
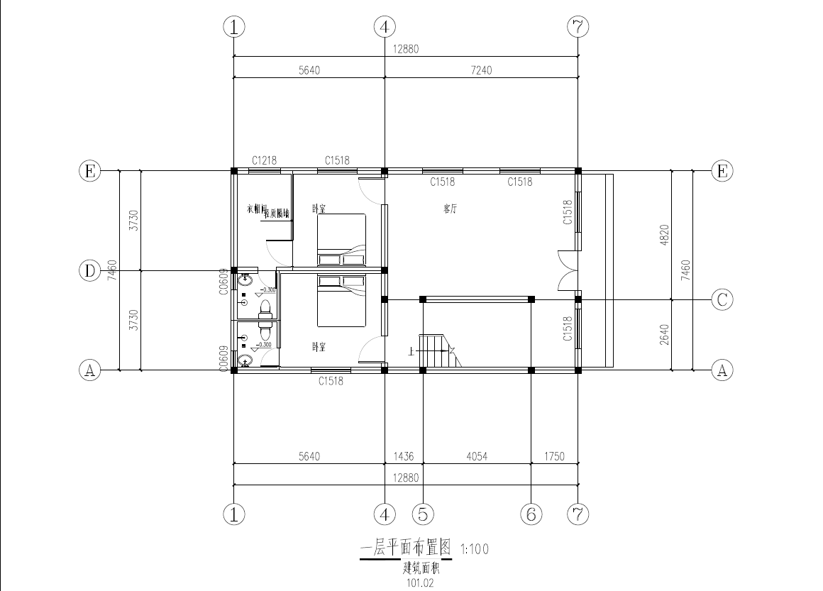
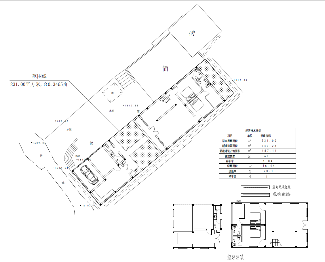
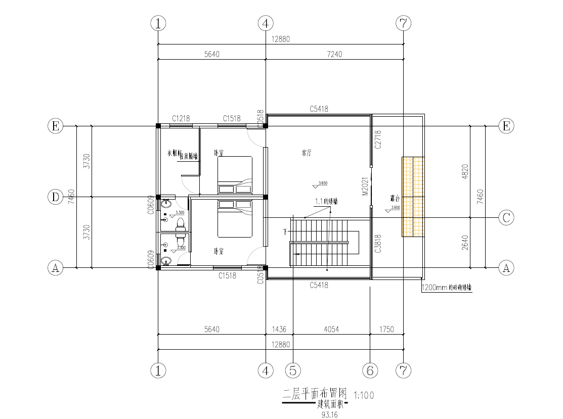
主要经济技术指标 | 用地面积:231.00平方米;总建筑面积:240.28平方米,建筑占地面积:157.11平方米;容积率:1.04;建筑密度:68%;绿地面积46.44平方米,绿地率20.1%。停车位1个。 |
公示期限 | 7个工作日(2025年10月15日 至2025年10月23日) |
联系电话 | 0883-7126375 |
联系邮箱 | cyxgtjghg@163.com |
说明 | 1.书面反馈(申请)意见发表时间或邮戳日不应超过公示期的最后一天24:00前,逾期视为无效意见。2.书面意见应注明真实联系人姓名、联系方式。3.信件寄往沧源县勐董镇广场路49号县自然资源局(请注明“公示通告”字样)。 |
公示网址 | |
附件 | 沧源县糯良乡朱招茹自建房建设工程项目设计方案批前公示平面图
|



