项目名称 | 沧源佤族自治县农村信用合作联社新建班老分社技术业务用房 |
类型 | 批前公示 |
公示类别 | 建设工程规划许可证 |
建设单位 | 沧源佤族自治县农村合作联社 |
用地位置 | 沧源县班老乡 |
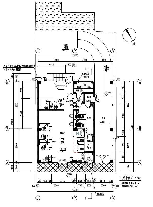
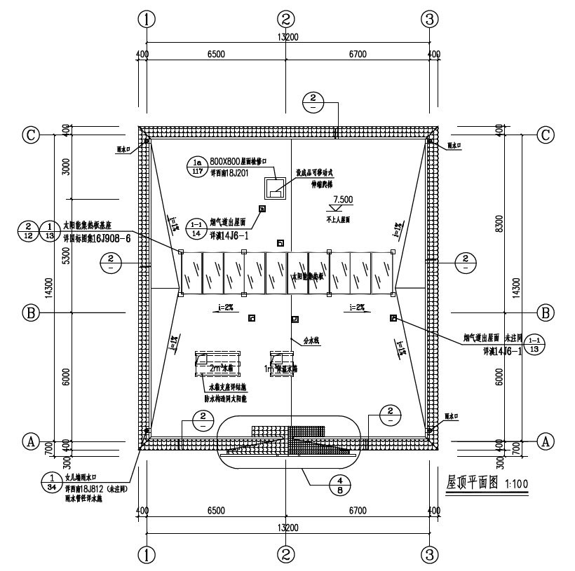
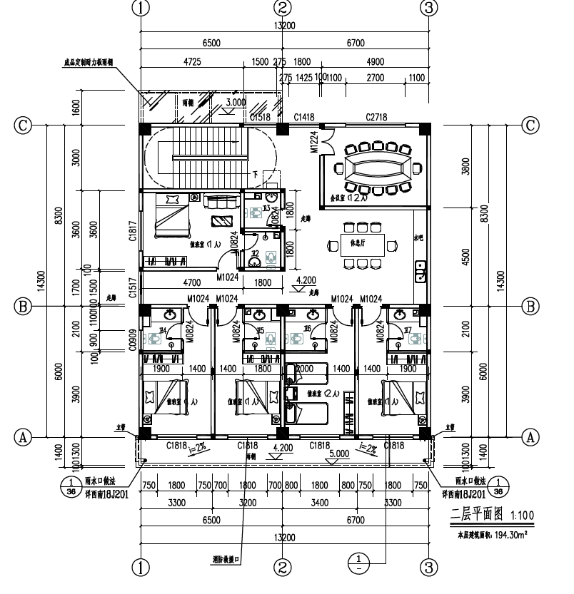
主要经济技术指标 | 总用地面积:395.00㎡;总建筑面积:391.75㎡;建筑占地面积:197.45㎡;绿地面积119.70㎡,绿地率30.30%,容积率0.992,建筑密度49.99%,建筑高度8.45米,机动车停车位4个。 |
公示期限 | 7个工作日(2025年11月24日 至2025年12月3日) |
联系电话 | 0883-7126375 |
联系邮箱 | cyxgtjghg@163.com |
说明 | 1.书面反馈(申请)意见发表时间或邮戳日不应超过公示期的最后一天24:00,逾期视为无效意见。2.书面意见应注明真实联系人姓名、联系方式。3.信件寄往沧源县勐董镇广场路49号县自然资源局(请注明“公示通告”字样)。 |
公示网址 | |
附件 | 设计方案公示稿(附项目区位图、总平面图、鸟瞰图、绿化景观等其他重要效果图等,涉及方案调整的,需增加方案对比图以及变更内容)
|
|



